Design services.

Concept Sketch Set

The concept sketch set is ideal for those clients looking for a small scale renovation to their property. This set is hand drawn and will provide enough detail for a contractor to complete the project to their highest standard.

Whats included:

  • Detailed Concept Sketch

  • Mood board

  • Plant + Material Palette

Optional CAD plans are available.

Planting Plan Set

The planting plan set is great if you are looking to revamp a property that you already love. If you like how your space already functions then some new life in the garden may be all you need. This set combined with our plant sourcing service is perfect for a quick renovation to your garden.

Whats included:

  • Planting Plan

  • Plant Palette

Optional Irrigation plan available.

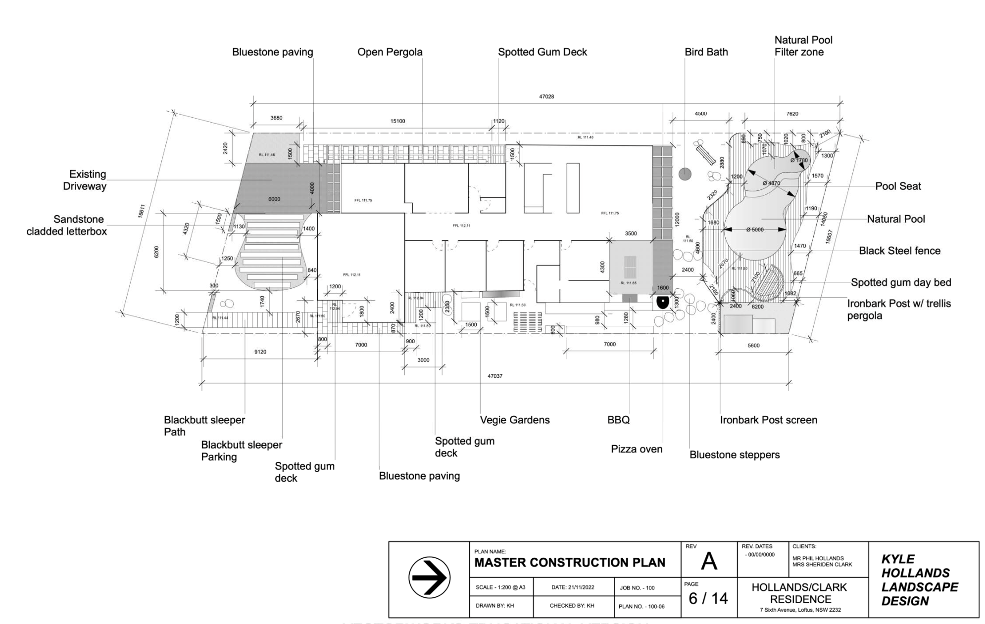
Concept Design Package

The Concept Design Package is a holistic set of drawings and documentation that will contribute to the development of large scale projects.

Whats included:

  • Master CAD Concept Plan

  • Construction Detailed Drawings

  • Construction Plans & Documentation

  • Site Sections

  • Specification Details

  • Planting Plan

  • Mood Board

  • Plant + Material Palette

  • Irrigation Plan

  • Lighting Plan

Enquire